Em meio à paisagem natural do bairro Morada de Laranjeiras, o loteamento Reserva da Morada desponta como um oásis de crescimento e desenvolvimento. Este bairro, conhecido por sua tranquilidade e proximidade com a natureza, está agora no epicentro de um crescimento imobiliário e comercial.
O Reserva da Morada é uma joia rara no setor imobiliário da Serra, oferecendo lotes espaçosos que desafiam os padrões contemporâneos. Os terrenos amplos possibilitaram a construção de residências de alto padrão, elevando o patamar de luxo e conforto na região. Como resultado, o bairro tornou-se um dos destinos mais cobiçados para moradia na área.
No auge desta evolução, a Marsanto Imóveis apresenta o ‘Pátio Reserva’, um complexo inovador localizado na Avenida Copacabana, porta de entrada para o loteamento. Esse empreendimento promete ser o coração comercial do bairro, hospedando uma variedade de lojas e escritórios.
Com o objetivo de oferecer conveniência máxima aos moradores, o ‘Pátio Reserva’ contará com padarias, mercearias, casas de carne, bares, lojas de roupas, salões de beleza, pet shops, papelarias e muito mais.
Estrutura e Planejamento do ‘Pátio Reserva’
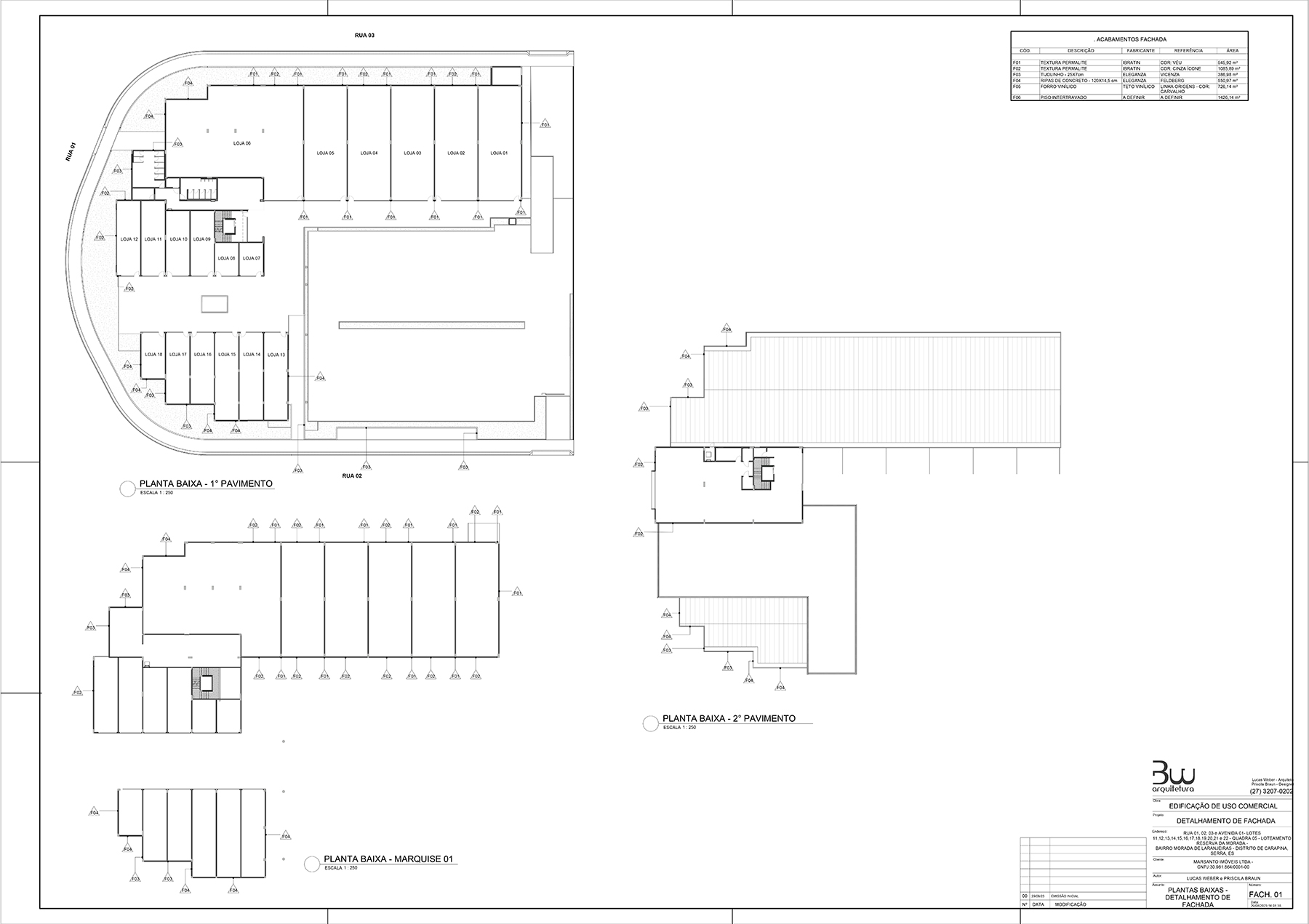
Ocupando uma área total de 4.460,00 m², dos quais 2.563,00 m² são de área construída, o projeto dispõe de 20 lojas, 4 salas comerciais e um amplo estacionamento com 102 vagas, incluindo espaços para carros, motos, bicicletas, áreas de embarque, desembarque, e carga e descarga.
Diogo Martins, o diretor da Marsanto Imóveis, destaca que o projeto, idealizado pelo arquiteto Lucas Weber, foi concebido para ser moderno, atraente e funcional. Martins vislumbra o ‘Pátio Reserva’ como um futuro ponto de encontro para os residentes, um lugar onde poderão fazer compras, socializar, apreciar um bom vinho ou cerveja e saborear iguarias locais.
Locações e Previsão de Funcionamento
Martins informa que as lojas serão exclusivamente para locação, prevendo que o ‘Pátio Reserva’ estará concluído até o final de abril, com algumas lojas operando já em maio. Interessados em locações podem visitar o local ou entrar em contato com Renato Maciel da Marsanto no telefone (27) 99941-0646.









